Trilocale in vendita

Portici, Viale Ascione - Portici Salute Ascione
€ 199.000
3 locali 3 locali
110 Mq 110 Mq
2 bagni 2 bagni

Trilocale in vendita

Portici, Viale Ascione - Portici Salute Ascione

Descrizione annuncio

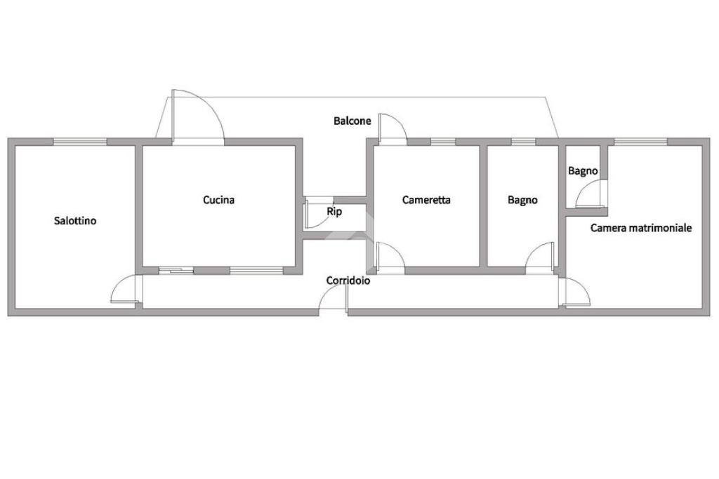
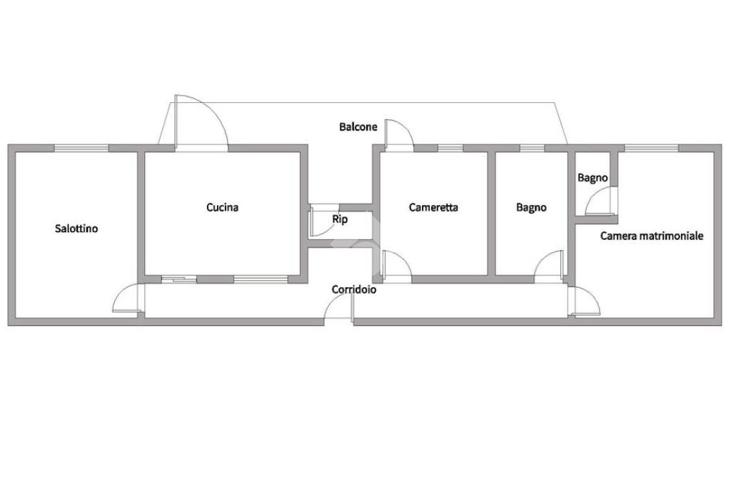
Viale Ascione, zona centrale ma tranquilla, a due passi da via Libertà e piazza San Ciro, zone servite da le principali attività commerciali, proponiamo la vendita di un quadrilocale di circa 90MQ calpestabili con possibilità di posto auto a rotazione, posto ad un 1° piano, oltre il rialzato, servito da ascensore, locato con regolare contratto con scadenza Aprile 2028 con rendita mensile di €650.


Entrando nell’immobile, un lungo corridoio da accesso a tutti gli ambienti, un salottino servito da finestra, cucina abitabile e cameretta, entrambe servite dall’ampio balcone con affaccio arioso, bagno con finestra e camera matrimoniale, servito da finestra, con bagno privato.


Il cespite si presenta in buono stato manutentivo ma, la presenza di sole tramezzature, permette una nuova suddivisione degli spazi, adatti ad ogni esigenza familiare.


Ecco i tre motivi principali per acquistare l'immobile:
- Posto auto a rotazione
- In buone condizioni interne
- Zona centrale ma tranquilla
Possibilità di visionare la soluzione previo avviso telefonico allo 081.185.14.049 o prenota un appuntamento al nostro numero: Whatsapp: 3457504067

Mostra tutto

Nelle vicinanze

Trasporto pubblico Trasporto pubblico
Portici Via Libertà
Portici Via Libertà
570 m
stazione di Portici-Ercolano
stazione di Portici-Ercolano
600 m
Libertà - I Traversa Liberà
Libertà - I Traversa Liberà
210 m
Piazza San Ciro
Piazza San Ciro
250 m
stazione di Pietrarsa-San Giorgio a Cremano
stazione di Pietrarsa-San Giorgio a Cremano
2,0 Km
Ricariche auto elettriche Ricariche auto elettriche
Portici Parcheggio Comunale Multipiano | EnelX
560 m
Stazione Portici Bellavista | EnelX
1,0 Km
Portici De Lauzieres | EnelX
1,2 Km
Portici Siani | EnelX
1,9 Km
Scuole Scuole
Facoltà di Agraria
230 m
4° Istituto comprensivo
400 m
Istituto Comprensivo Da Vinci-Comes DM
440 m
IPIA "Enriques"
460 m
2° Istituto comprensivo
470 m
Farmacia Farmacia
Farmacia
1,3 Km
Ospedali Ospedali
Guardia medica
330 m
Supermercati Supermercati
Euroesse
420 m
Euroesse Supermercati
550 m
MD Discount
1,2 Km
Supermercati
1,5 Km
Supermercato SISA - Gruppo di Polo
1,7 Km
Negozi Negozi
Negozi
1,0 Km
OVS
1,9 Km
Bar Bar
Bar Guida
1,5 Km
Ristoranti Ristoranti
La Tradizione
930 m
Pappamonte
1,0 Km
Café Herculaneum
1,0 Km
Ristoranti
1,0 Km
La Vineria senza Cucina
1,1 Km
Mostra tutto

Caratteristiche

Rif.:
61140302
Piano:
1 di 4 con ascensore (Piano basso)
Posti auto:
1
Balconi:
1
Camere da letto:
2
Arredamento:
Assente
Mostra tutto
Prezzo Prezzo
€ 199.000
Rata mutuo Rata mutuo
€ 945 / mese
Spese annue Spese annue
€ 1.104
Proponi il tuo prezzoProponi il tuo prezzo

Classe Energetica

G
G
G
G
G
G
G
G
G
EP invernale del fabbricato:
EP estiva del fabbricato:
Anno di costruzione:
1967
Riscaldamento:
Autonomo
Tipo impianto:
A radiatori
Tipo alimentazione:
Metano

Ti interessa visionare l'immobile?

Fissa un appuntamento  Fissa un appuntamento

Richiedi informazioni

Clicca su Leggi per aprire l'informativa
* Questi campi sono obbligatori

Calcola il tuo mutuo

Semplice e senza impegno
Anticipo

( % )
Mutuo

( % )

pochi semplici passi

inserisci i tuoi dati
Questionario completato
Grazie per aver richiesto un appuntamento senza impegno con un nostro Consulente del Credito e Assicurativo.

Hai inserito correttamente tutti i dati necessari e a breve riceverai una e-mail con un link da convalidare per inviare i tuoi dati.
Affiliato
Tecnoliberta' Srl
Via Libertà, 287 A/B 80055 Portici (NA)

Il nostro staff


  • Ciro Paliotti
    Affiliato
Via Libertà, 287 A/B 80055 Portici (NA)
Zona: Portici Libertà
Mostra su mappa
Affiliato
Tecnoliberta' Srl
Via Libertà, 287 A/B 80055 Portici (NA)

2026 Tecnocasa Franchising S.p.A. - P. IVA 08365160152 - Via Monte Bianco 60/A 20089 Rozzano (MI). Ogni agenzia ha un proprio titolare ed è autonoma. Privacy policy | Policy utilizzo | Cookie policy